【新築分譲住宅】富士見市羽沢2期

3,590万円~3,690万円

埼玉県富士見市羽沢1丁目12-4

東武東上線「鶴瀬」駅徒歩23分

東武東上線「ふじみ野」駅徒歩25分

価格
3,590万円~3,690万円
間取り/建物面積
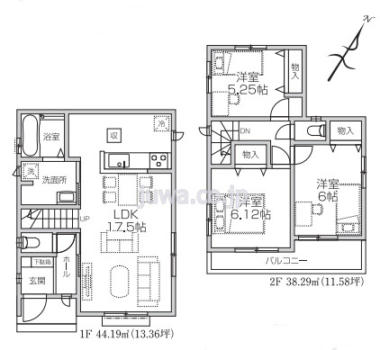
3LDK/82.39㎡~82.48㎡
所在地
埼玉県富士見市羽沢1丁目12-4
築年
2025年10月(予定)
駐車
-
交通

東武東上線鶴瀬」駅 徒歩23分

東武東上線ふじみ野」駅 徒歩25分

【新築分譲住宅】富士見市羽沢2期の基本情報

物件名
【新築分譲住宅】富士見市羽沢2期
価格
3,590万円~3,690万円
建物面積
82.39㎡~82.48㎡
土地面積
25.01坪~25.36坪(82.70㎡~83.84㎡)
築年月
2025年10月(予定)
総戸数
2戸
所在地
埼玉県富士見市羽沢1丁目12-4
交通

東武東上線鶴瀬」駅 徒歩23分

東武東上線ふじみ野」駅 徒歩25分

【新築分譲住宅】富士見市羽沢2期の詳細情報

設備条件
設備(その他)
    -
駐車場/月額
-/-
土地権利
所有権
国土法届出
不要
用途地域
第一種低層住居専用
取引態様
一般媒介
引渡し
相談
備考
【新築分譲住宅】富士見市羽沢2期:東武東上線鶴瀬駅にも近くて便利。徒歩10分の場所に富士見市立勝瀬小学校があります。こだわり条件の一つ東南側道路に面している物件になってます。戸建て物件をご検討なら、コチラの新築の物件をご覧ください。住和がご紹介する、売買一戸建てを見学しては如何でしょうか。富士見市にある一戸建てなら、0120-259-108から見学のご予約を受け付けております。

【新築分譲住宅】富士見市羽沢2期のコメント(おすすめポイント)

徒歩10分の場所に富士見市立勝瀬小学校があります。落ち着きのある室内と、趣のある外観が魅力の令和7年10月築の物件です。夢のマイホームは思い切って新築の戸建てはいかがでしょうか。新築ならではの「新しさ」がとても魅力です。富士見市の東武東上線鶴瀬付近にある一戸建て探しで、何かお困りの事がございましたら、当社に何なりとお申し付け下さい。0120-259-108までご連絡をお待ちしております。

【新築分譲住宅】富士見市羽沢2期で募集中の物件

  1. B号棟

    24.95坪 (82.48㎡)

    3,590万円(143.89万円/坪)

  2. A号棟

    24.92坪 (82.39㎡)

    3,690万円(148.07万円/坪)

周辺施設

  • 富士見市立勝瀬小学校の画像

    小学校

    富士見市立勝瀬小学校

    765m(10分)

  • 富士見市立勝瀬中学校の画像

    中学校

    富士見市立勝瀬中学校

    1123m(15分)

  • イムス富士見総合病院の画像

    総合病院

    イムス富士見総合病院

    1704m(22分)

近隣の物件

  1. 富士見市上沢3丁目

    3SLDK (93.15㎡)

    3,380万円

  2. 富士見市東みずほ台4丁目

    4LDK (101.36㎡)

    3,480万円

  3. 富士見市鶴瀬東2丁目

    4LDK (94.08㎡)

    4,190万円

  4. 富士見市渡戸1丁目

    3LDK (73.48㎡)

    2,990万円

【新築分譲住宅】富士見市羽沢2期

お気軽にお問い合わせください

無料お問い合わせ

株式会社住和

0120-259-108

9:00~19:00

(休:火曜日・水曜日)